Vista Spettacolare
13049
ID Proprietà
550 mq
Superficie
5
Camere da letto
4
Bagni
Descrizione
Nella piccola frazione di Cantavenna di Gabiano, con una vista spettacolare sulle dolci colline che si estendono fino all’intero arco alpino, abbiamo questa fantastica possibilità per voi!
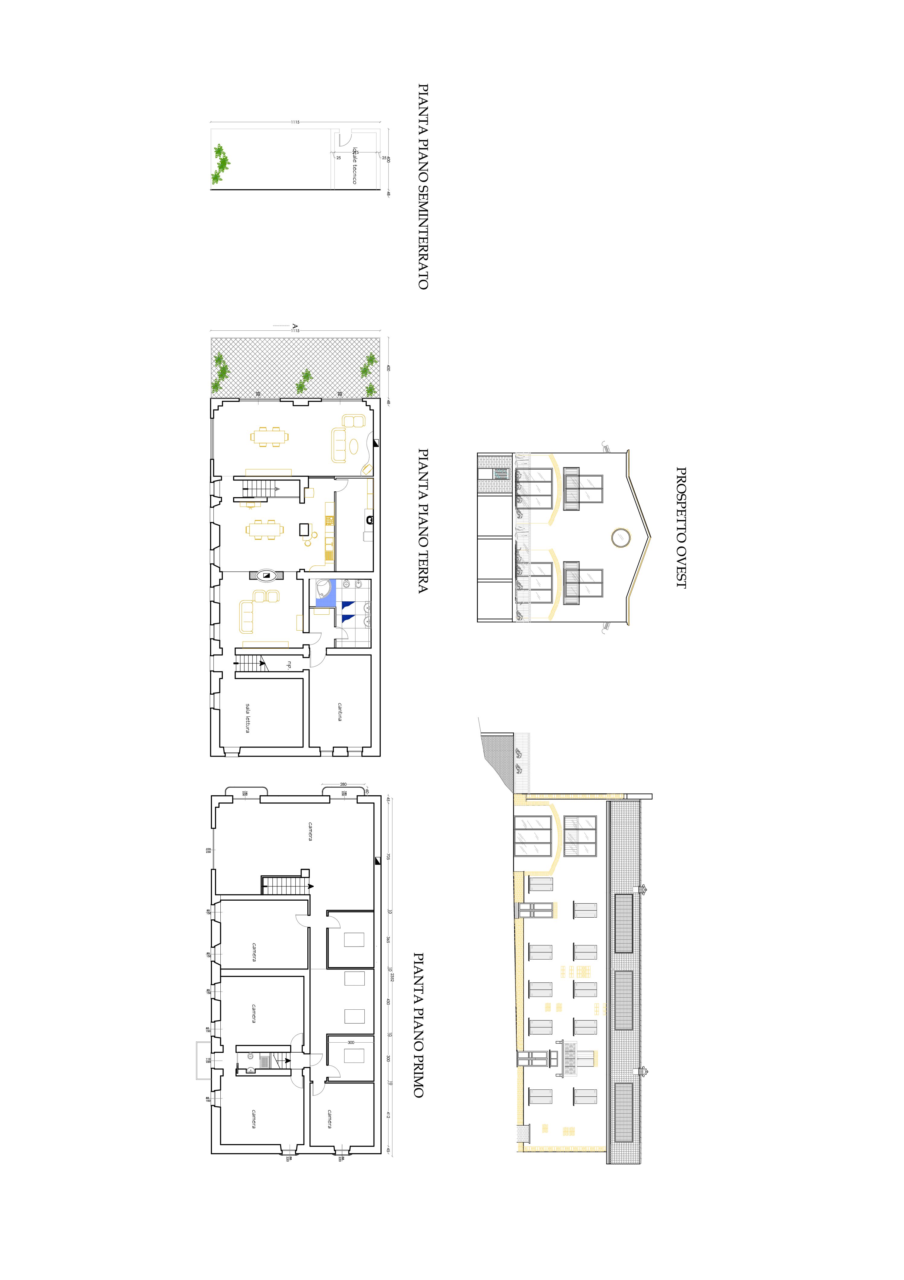
La maggior parte dei lavori più importanti, complessi e costosi, tra cui la produzione di energia solare per non meno di 10 kw, sono già stati realizzati, il resto spetta a voi e alla vostra creatività.
Le caratteristiche classiche della cascina originale sono state mantenute, ove possibile, così abbiamo una bella cantina con soffitti a volta, la scala, i soffitti alti a volta e i camini, ma con l’aggiunta di moderne soluzioni open space, terrazze, balconi e il magnifico salone e la camera da letto padronale con le grandi finestre.
Abbiamo un progetto suggerito e approvato, ma possiamo modificarlo in base alle vostre esigenze e ai vostri desideri.
- Classe Energetica: in corso.
Indirizzo
- Country: Italia
- Province / State: Alessandria
- City / Town: Cantavenna
- ID Proprietà 13049
- Prezzo €345.000
- Categria Proprietà Indipendente su 4 lati
- Status Proprietà vendita
- Camere da letto 5
- Bagni 4
- Superficie 550 mq
- Etichetta Novità

